Sternenhimmel im Schlafzimmer mit steuerbaren Sternbildern
Moderator: T.Hoffmann
Hallo erstmal.
Ich bin vor kurzem auf die Idee gebracht worden, für mein Schlafzimmer einen Sternenhimmel zu entwerfen. Dass dies nicht ganz so leicht ist wie anfänglich vermutet habe ich mittlerweile herausgefunden.
In meine Schlafzimmerdecke möchte ich gerne LEDs einsetzen (meine aktuellen Rechnungen liegen bei 150 LEDs für ca. 20m²), welche jeweils zu 3er-Clustern (oder auch 5er, je nach praktischer Machbarkeit) zusammen an einen Controller angeschlossen werden, welcher die Helligkeiten für die einzelnen Cluster steuert. Dabei sollte es möglich sein, ein Programm auf den Controller zu spielen (bzw. selbigen so zu programmieren), dass entweder einzelne Sternbilder etwas heller leuchten als die restlichen "Sterne" oder der Himmel leicht "flacker" (wie eben auch in der Realität).
Bei meinen bisherigen Nachforschungen bin ich auf einige Lösungen für den Flacker-Effekt gestoßen, jedoch nicht auf eine Lösung für die Programmierung. Ich weiß dass dies warscheinlich kein Vorhaben ist, was man mal "eben so" nebenbei realisiert und welches großen Aufwand in anspruch nimmt. Aber ich denke, dass ich dieses Vorhaben bewältigen kann. Daher nun einige Angaben zum Raum, den LED, ....
Der Raum ist ca. 4 mal 5 Meter groß.
Über der Deckenvertäfelung ist ein Hohlraum mit einer Höhe von etwa 2-3 cm.
Für den Controller und die restliche Elektrik ist ein "Anbau" an den Rolladenkasten vorgesehen, der ca. 20x10x60cm Platz bietet.
LEDs zum verbauen habe ich noch nicht, mir schweben Superhelle weiße LEDs mit einem Abstrahlwinkel von 180° vor (ArtNr.: 1500000118)
Eventuell sollen auch einige RGB-LEDs eingearbeitet werden, um nicht-weiße-Sterne darzustellen oder diese als Farbige Hintergrundbeleuchtung beim Fernsehgucken o.ä. einzusetzen
Um diese zu Steuern benötige ich also einen (oder mehrere) Controller mit insgesammt 30 (bzw. 50) Ausgängen. Da ich mich noch nicht sehr Lange mit Controller etc. beschäftige hab ich natürlich nicht viel Ahnung wie sich so etwas realisieren lässt. Aber da ich in diesem Forum schon sehr vile detaillierte Erklärungen zu diversen Dingen gefunden habe bin ich zuversichtlich, dass es jemanden gibt der mir eventuell mit Links und/oder guten Ratschlägen weiterhelfen kann.
Ich bin vor kurzem auf die Idee gebracht worden, für mein Schlafzimmer einen Sternenhimmel zu entwerfen. Dass dies nicht ganz so leicht ist wie anfänglich vermutet habe ich mittlerweile herausgefunden.
In meine Schlafzimmerdecke möchte ich gerne LEDs einsetzen (meine aktuellen Rechnungen liegen bei 150 LEDs für ca. 20m²), welche jeweils zu 3er-Clustern (oder auch 5er, je nach praktischer Machbarkeit) zusammen an einen Controller angeschlossen werden, welcher die Helligkeiten für die einzelnen Cluster steuert. Dabei sollte es möglich sein, ein Programm auf den Controller zu spielen (bzw. selbigen so zu programmieren), dass entweder einzelne Sternbilder etwas heller leuchten als die restlichen "Sterne" oder der Himmel leicht "flacker" (wie eben auch in der Realität).
Bei meinen bisherigen Nachforschungen bin ich auf einige Lösungen für den Flacker-Effekt gestoßen, jedoch nicht auf eine Lösung für die Programmierung. Ich weiß dass dies warscheinlich kein Vorhaben ist, was man mal "eben so" nebenbei realisiert und welches großen Aufwand in anspruch nimmt. Aber ich denke, dass ich dieses Vorhaben bewältigen kann. Daher nun einige Angaben zum Raum, den LED, ....
Der Raum ist ca. 4 mal 5 Meter groß.
Über der Deckenvertäfelung ist ein Hohlraum mit einer Höhe von etwa 2-3 cm.
Für den Controller und die restliche Elektrik ist ein "Anbau" an den Rolladenkasten vorgesehen, der ca. 20x10x60cm Platz bietet.
LEDs zum verbauen habe ich noch nicht, mir schweben Superhelle weiße LEDs mit einem Abstrahlwinkel von 180° vor (ArtNr.: 1500000118)
Eventuell sollen auch einige RGB-LEDs eingearbeitet werden, um nicht-weiße-Sterne darzustellen oder diese als Farbige Hintergrundbeleuchtung beim Fernsehgucken o.ä. einzusetzen
Um diese zu Steuern benötige ich also einen (oder mehrere) Controller mit insgesammt 30 (bzw. 50) Ausgängen. Da ich mich noch nicht sehr Lange mit Controller etc. beschäftige hab ich natürlich nicht viel Ahnung wie sich so etwas realisieren lässt. Aber da ich in diesem Forum schon sehr vile detaillierte Erklärungen zu diversen Dingen gefunden habe bin ich zuversichtlich, dass es jemanden gibt der mir eventuell mit Links und/oder guten Ratschlägen weiterhelfen kann.
- Doc_McCoy
- Hyper-User

- Beiträge: 1962
- Registriert: Sa, 03.06.06, 15:49
- Wohnort: Neualbenreuth
- Kontaktdaten:
Hm...
Da hat es schon mal so ein Topic gegeben...
viewtopic.php?t=351&highlight=stern
viewtopic.php?t=900&highlight=sternenhimmel
viewtopic.php?t=29&highlight=sternenhimmel
^^^Schau mal dort nach, da wurde über Sternenhimmel geredet.
Also ich denke ambesten geeignet wären diese:
http://www.leds.de/product_info.php?inf ... -3-3V.html
Diese Leds sind zwar relativ teuer, aber dafür sind sie ganz winzig(brauchst SMD-Lötkolben dafür) und haben einen sehr wenig mcd. Weil ich denke andere LEDs sind einfach zu hell für einen Sternenhimmel dafür, bei 150 Leds ist das ganze Zimmer beleuchtet. Ansonsten würde ich 3mm Leds nehmen, leider gibt es hier im Shop keine weißen Leds mit nur 150mcd oder so.
Da hat es schon mal so ein Topic gegeben...
viewtopic.php?t=351&highlight=stern
viewtopic.php?t=900&highlight=sternenhimmel
viewtopic.php?t=29&highlight=sternenhimmel
^^^Schau mal dort nach, da wurde über Sternenhimmel geredet.
Also ich denke ambesten geeignet wären diese:
http://www.leds.de/product_info.php?inf ... -3-3V.html
Diese Leds sind zwar relativ teuer, aber dafür sind sie ganz winzig(brauchst SMD-Lötkolben dafür) und haben einen sehr wenig mcd. Weil ich denke andere LEDs sind einfach zu hell für einen Sternenhimmel dafür, bei 150 Leds ist das ganze Zimmer beleuchtet. Ansonsten würde ich 3mm Leds nehmen, leider gibt es hier im Shop keine weißen Leds mit nur 150mcd oder so.
Wow, da hast du dir echt was vorgenommen.
Einen Controller der extra für sowas gebaut wurde ist mir jetzt nicht bekannt.
Eine Möglichkeit sowas zu realtisieren wäre über ein Datenbussystem, DMX wäre wohl das richtige dafür, allerdings bräuchtest du dafür einen DMX Sender (Lichtpult oder PC mit DMX Interface) und die entsprechenden Empfänger.
Ein ziemlicher aufwand und wohl auch alles andere als billig.
Einen Controller der extra für sowas gebaut wurde ist mir jetzt nicht bekannt.
Eine Möglichkeit sowas zu realtisieren wäre über ein Datenbussystem, DMX wäre wohl das richtige dafür, allerdings bräuchtest du dafür einen DMX Sender (Lichtpult oder PC mit DMX Interface) und die entsprechenden Empfänger.
Ein ziemlicher aufwand und wohl auch alles andere als billig.
@Doc_McCoy:
Erstmal danke für die Links, aber die Suchfunktion habe ich schon genutzt und leider nichts direkt passendes gefunden. Die Ansätze sind gut, aber die Steuerung ist zZt mein Hauptproblem.
Zu den LEDs:
Ich hatte vor, da an die Decke Panelen kommen, Löcher zu bohren und die LEDs durchzustecken. Vorne etwas Heißkleber (bzw. Universalreperaturmittel) drauf und man sieht zum einen die Löcher nicht mehr so und zum andren habe ich einen schönen diffusions-Effekt.
Die LEDs habe ich so hell gewählt, da der Sternenhimmel eventuell auch als Raumbeleuchtung dienen soll (weiß noch nicht ob ich nach dem gefrickel mit 150 LEDs noch Lust habe eine andere Beleuchtung anzubauen). Der Controller soll die Helligkeitsregelung übernehmen.
@root:
Die Idee mit dem PC ist mir auch schon ghekommen, zumal ich hier noch einen alten passiv-gekühlten 90MHz-PC rumfliegen habe.
Das hätte dann den Vorteil dass ich da ein Netzteil reinbauen kann, welches die LEDs mit Strom versorgt und außerdem wäre die Programmierung wohl einfacher als die eines selbstgebastelten irgendwas.
Werde mich mal über Google ein bischen über DMX Interface Karten und deren Programmierung informieren.
/edit:
Also soweit ich das jetzt Verstanden habe würde es statt einer DMX-Interface-Karte auch der Druckerport des PCs tun. An diesen werden parallel weitere Controller angeschlossen, die die Helligkeitsregelung übernehmen.
Diese müssten so eingestellt sein, dass das erste Datenbyte, was sie empfangen eine "Adresse" angibt (jeder Controller hat eine andere), und das 2. Byte die Helligkeit (theoretisch reichen ja schon 256 Stufen).
Jetzt geht es aber weiter mit meiner Fragerei: Welche Controller können diese Aufgabe erfüllen und was bräuchte ich zur Programmierung an Hardware?
Erstmal danke für die Links, aber die Suchfunktion habe ich schon genutzt und leider nichts direkt passendes gefunden. Die Ansätze sind gut, aber die Steuerung ist zZt mein Hauptproblem.
Zu den LEDs:
Ich hatte vor, da an die Decke Panelen kommen, Löcher zu bohren und die LEDs durchzustecken. Vorne etwas Heißkleber (bzw. Universalreperaturmittel) drauf und man sieht zum einen die Löcher nicht mehr so und zum andren habe ich einen schönen diffusions-Effekt.
Die LEDs habe ich so hell gewählt, da der Sternenhimmel eventuell auch als Raumbeleuchtung dienen soll (weiß noch nicht ob ich nach dem gefrickel mit 150 LEDs noch Lust habe eine andere Beleuchtung anzubauen). Der Controller soll die Helligkeitsregelung übernehmen.
@root:
Die Idee mit dem PC ist mir auch schon ghekommen, zumal ich hier noch einen alten passiv-gekühlten 90MHz-PC rumfliegen habe.
Das hätte dann den Vorteil dass ich da ein Netzteil reinbauen kann, welches die LEDs mit Strom versorgt und außerdem wäre die Programmierung wohl einfacher als die eines selbstgebastelten irgendwas.
Werde mich mal über Google ein bischen über DMX Interface Karten und deren Programmierung informieren.
/edit:
Also soweit ich das jetzt Verstanden habe würde es statt einer DMX-Interface-Karte auch der Druckerport des PCs tun. An diesen werden parallel weitere Controller angeschlossen, die die Helligkeitsregelung übernehmen.
Diese müssten so eingestellt sein, dass das erste Datenbyte, was sie empfangen eine "Adresse" angibt (jeder Controller hat eine andere), und das 2. Byte die Helligkeit (theoretisch reichen ja schon 256 Stufen).
Jetzt geht es aber weiter mit meiner Fragerei: Welche Controller können diese Aufgabe erfüllen und was bräuchte ich zur Programmierung an Hardware?
Also ich würde dir empfehlen, wenn du das wirklich so machen willst, alles mit DMX zu machen, aus dem einfachen Grund, dass DMX der Standard für Licht ist. Sprich du bekommst ziemlich viele Interfaces und Software.
Es gibt gute Dokus über den Standard und auch viele User die dir bei evtl. vorhandenen Problemen helfen können.
Klar man könnte es auch versuchen über Multiplexer aufzubauen, aber wie gesagt ich glaube kaum dass du damit so flexibel bist wie mit DMX.
Es gibt gute Dokus über den Standard und auch viele User die dir bei evtl. vorhandenen Problemen helfen können.
Klar man könnte es auch versuchen über Multiplexer aufzubauen, aber wie gesagt ich glaube kaum dass du damit so flexibel bist wie mit DMX.
Das es viele Interfaces und Software für DMX gibt ist zwar ein Punkt, der dafür spricht, nur der Preis sagt mir irgendwie nicht so ganz zu. Was is an DMX-Interface-Karten gefunden habe bewegte sich in der Kartegorie 500€ und größer, und das ist nicht grade wenig. Ich denke da komme ich mit etwas selbstgebasteltem günstiger weg (oder? weiß es nicht, vermute es nur).
Und es ist ja auch nicht so, dass ich an den Sternenhimmel noch ne komplette Lightshow für ein Konzert dranhängen will. Es reicht mir "nur" ein Sternenhimmel...
Und es ist ja auch nicht so, dass ich an den Sternenhimmel noch ne komplette Lightshow für ein Konzert dranhängen will. Es reicht mir "nur" ein Sternenhimmel...
Also ich habe meine Sachen auch selber gebaut ( such mal nach meinem Thread "Moodlight"), damit kommt man schon recht günstig weg. Einen DMX Sender für den Parallelport gibt es sogar für etwa 10€ im Selbstbau wenn ich mich nicht irre, könnte dir dazu den Link mal raussuchen.
Aber bei sowas bräuchtest du halt einen PC, oder halt ein Lichtpult, das fängt so ab etwa 100€ an, damit kannst du dir dann auch Szenen programmieren die dann halt ablaufen.
Aber bei sowas bräuchtest du halt einen PC, oder halt ein Lichtpult, das fängt so ab etwa 100€ an, damit kannst du dir dann auch Szenen programmieren die dann halt ablaufen.
Einen PC habe ich ja hier rumfliegen. Deshalb finde ich deine Lösung schonmal gar nicht so schlecht (eher gesagt finde ich sie sehr gut ^^). Und wenn der DMX-Sender am Parallelport des PCs hängt könnte ich auch ein Programm schreiben, welches die Steuerung/Programmierung des Himmels via Browser von einem andren PC aus übernimmt.
Ich werde mal deinen Thread suchen und noch bischen was über DMX-Steuerung lesen, damit ich vielleicht in 2 Jahren mal dahintersteige und mit dem bauen anfangen kann
Ich werde mal deinen Thread suchen und noch bischen was über DMX-Steuerung lesen, damit ich vielleicht in 2 Jahren mal dahintersteige und mit dem bauen anfangen kann
Hab gerade mal gesucht.
Hier der Sender für <10€.
Ob es sich lohnt Software zu schreiben ist so ne Frage gibt ja eigentlich genug Freeware, z.B. Freestyler oder DMXControl, wobei die Frage ist ob das auf deinem altem Rechner noch läuft
Hier der Sender für <10€.
Ob es sich lohnt Software zu schreiben ist so ne Frage gibt ja eigentlich genug Freeware, z.B. Freestyler oder DMXControl, wobei die Frage ist ob das auf deinem altem Rechner noch läuft
Super, danke!
Einen Demultiplexer habe ich dank deines anderen Threads auch schon gefunden.
Werde mich gegen Mittwoch mal damit auseinandersetzen, da ich die nächsten 2 Tage wenig Zeit habe.
Bis dahin und danke nochmal!
/edit: habe gerade nochmal etwas gestöbert und bin auf folgendes gestoßen:
http://www.hoelscher-hi.de/hendrik/light/matrix.htm
Zusammen mit dem von dir vorgeschlagenen DMX-Sender für den Parallelport und einem schönen Programm für den PC sieht der Sternenhimmel im Endeffekt doch realisierbar aus.
Einen Demultiplexer habe ich dank deines anderen Threads auch schon gefunden.
Werde mich gegen Mittwoch mal damit auseinandersetzen, da ich die nächsten 2 Tage wenig Zeit habe.
Bis dahin und danke nochmal!
/edit: habe gerade nochmal etwas gestöbert und bin auf folgendes gestoßen:
http://www.hoelscher-hi.de/hendrik/light/matrix.htm
Zusammen mit dem von dir vorgeschlagenen DMX-Sender für den Parallelport und einem schönen Programm für den PC sieht der Sternenhimmel im Endeffekt doch realisierbar aus.
Soho.......
Habe noch etwas gelesen und bin jetzt zu folgendem Ergebnis gekommen (hoffe das klappt so in etwa).
Das mit der Helligkeitssteuerung der "Sterne" habe ich noch nicht ganz raus, hoffe du kannst mir da ein bischen helfen.
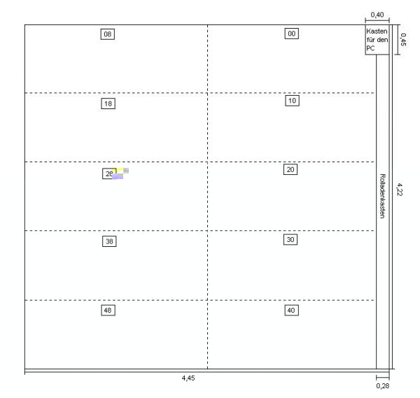
Soweit ich das jetzt Verstanden habe, reicht 1 DMX-Kanal nicht für eine Helligkeitssteuerung. Das heißt ich brauche mehrere Kanäle pro Cluster. Ich habe mir überlegt, dass 8 Helligkeitsstufen pro LED-Cluster ausreichen sollten, d.h. ein Cluster 3 Kanäle belegt.
In der Skizze ist das zu gestaltende Zimmer zu sehen.
Der gesammte Raum ist in 10 "Abschnitte" unterteilt, in denen jeweils ein DMX-Decoder sitzt (Die Zahl ist der Startwert als Hex-Code). In jeden Abschnitt sollen, nach neuen Tests 3 Cluster zu je 3 LEDs. Diese werden über den DMX-Decoder mit maximal 10 Volt versorgt, was einen Vorwiderstand von 11.67 Ohm erfordert (Wenn ich mich nicht arg verrechnet habe).
Jetzt bleiben mir einmal noch die Fragen:
- Wie genau Funktioniert die Helligkeitssteuerung? Habe zwar schon danach im Forum gesucht, aber über DMX ist das ganze wohl doch etwas komplexer.
- Stimmt meine Einkaufsliste für den DMX-Demultiplexer? Hier die Reichelt-Bestellnummern:
1x ATMEGA 8515-16 D
1x SN 75176BP
1x µA 7805
1x B380C1500RUND
1x 1/4W 10K
3x 1/4W 390
2x BE 100/385
1x NT 10
1x 8,0000-HC49U-S
1x LU 2,5 MS 8
Dabei fehlen noch ein paar Buteile, welche ich nicht finden konnte
PS: Direkt an der stelle für den PC läuft ein Stromkabel vorbei, das wird also weniger ein Problem. Die 10 Volt wollte cih vom PC-Netzteil nehmen.
PPS: Das einzige was ich ncoh nciht so gut finde ist, dass der PC nachdem ich ihn einschalte erst mal hochfahren muss und dann erst die Beleuchtung steuern kann. Licht das eine Einschaltverzögerung hat? seltsam.........
/edit:
Ok, ich glaube ich muss mich korregieren.
1 Kanal reciht scheinbar doch, um 1 LED (bzw. einen Cluster) zu dimmen. Dazu werde ich die "DMX-LED-Steuerung" von Hendrik Hölscher 2 mal verwenden, wodurch sich 32 LED-Cluster getrennt voneinander Regeln lassen.
Das heiß auf der Einkaufsliste für den Controller kommen noch:
2x ULN 2803A
2x 74AC 373
Und eine zusätzliche Steckerleiste zum bequemen anschließen der Cluster.
Vllt kann ja nochmal wer drübergucken und sein OK/seine Kritik äußern
Habe noch etwas gelesen und bin jetzt zu folgendem Ergebnis gekommen (hoffe das klappt so in etwa).
Das mit der Helligkeitssteuerung der "Sterne" habe ich noch nicht ganz raus, hoffe du kannst mir da ein bischen helfen.
Soweit ich das jetzt Verstanden habe, reicht 1 DMX-Kanal nicht für eine Helligkeitssteuerung. Das heißt ich brauche mehrere Kanäle pro Cluster. Ich habe mir überlegt, dass 8 Helligkeitsstufen pro LED-Cluster ausreichen sollten, d.h. ein Cluster 3 Kanäle belegt.
In der Skizze ist das zu gestaltende Zimmer zu sehen.
Der gesammte Raum ist in 10 "Abschnitte" unterteilt, in denen jeweils ein DMX-Decoder sitzt (Die Zahl ist der Startwert als Hex-Code). In jeden Abschnitt sollen, nach neuen Tests 3 Cluster zu je 3 LEDs. Diese werden über den DMX-Decoder mit maximal 10 Volt versorgt, was einen Vorwiderstand von 11.67 Ohm erfordert (Wenn ich mich nicht arg verrechnet habe).
Jetzt bleiben mir einmal noch die Fragen:
- Wie genau Funktioniert die Helligkeitssteuerung? Habe zwar schon danach im Forum gesucht, aber über DMX ist das ganze wohl doch etwas komplexer.
- Stimmt meine Einkaufsliste für den DMX-Demultiplexer? Hier die Reichelt-Bestellnummern:
1x ATMEGA 8515-16 D
1x SN 75176BP
1x µA 7805
1x B380C1500RUND
1x 1/4W 10K
3x 1/4W 390
2x BE 100/385
1x NT 10
1x 8,0000-HC49U-S
1x LU 2,5 MS 8
Dabei fehlen noch ein paar Buteile, welche ich nicht finden konnte
PS: Direkt an der stelle für den PC läuft ein Stromkabel vorbei, das wird also weniger ein Problem. Die 10 Volt wollte cih vom PC-Netzteil nehmen.
PPS: Das einzige was ich ncoh nciht so gut finde ist, dass der PC nachdem ich ihn einschalte erst mal hochfahren muss und dann erst die Beleuchtung steuern kann. Licht das eine Einschaltverzögerung hat? seltsam.........
/edit:
Ok, ich glaube ich muss mich korregieren.
1 Kanal reciht scheinbar doch, um 1 LED (bzw. einen Cluster) zu dimmen. Dazu werde ich die "DMX-LED-Steuerung" von Hendrik Hölscher 2 mal verwenden, wodurch sich 32 LED-Cluster getrennt voneinander Regeln lassen.
Das heiß auf der Einkaufsliste für den Controller kommen noch:
2x ULN 2803A
2x 74AC 373
Und eine zusätzliche Steckerleiste zum bequemen anschließen der Cluster.
Vllt kann ja nochmal wer drübergucken und sein OK/seine Kritik äußern
Ja sieht soweit gut aus, deinen Fehler mit den Kanälen hast du ja selber bemerkt
Was das dimmen betrifft: Das ganze läuft über eine PWM (Plusweitenmodulation). Dabei wird die LED ganz schnell ein/aus geschaltet, mehrere hundert mal in der Sekunde. Je nach dem wie lange die LED an bzw. aus ist. Dem entsprechend hast du die gewünschte Helligkeit.
z.B. wenn die LED für 2ms an ist und für 1ms aus, ist das heller, als wennn die LED für 0,5ms an und für 2,5ms aus ist.
Was das Hochfahren des PC's betrifft, das ganze lässt sich auch über DMX Pulte Steuern, damit würde der Bootvorgang entfallen
Und ob du das ganze nun über die Matrix oder über die Erweiterung mit den Latches schaltest ist im Prinzip egal, unterschied ist im wesentlichen, die anzahl der steuerbaren LED mit einem Modul und die Anzahl an Abstufungen beim dimmen.
Wobei ich kann dir sagen, dass du keine 255 Schritte zum dimmen brauchst, man merkt im obern Bereich eh kaum veränderungen, eine Auslösung von 120 "Schritten" sollte also auch reichen.
Fall's du dich für die Latches entscheiden solltest, anstatt für die Matrix, guck dir mal das Pinout des 74AC573 an, meiner Meinung nach ist das praktischer
Was das dimmen betrifft: Das ganze läuft über eine PWM (Plusweitenmodulation). Dabei wird die LED ganz schnell ein/aus geschaltet, mehrere hundert mal in der Sekunde. Je nach dem wie lange die LED an bzw. aus ist. Dem entsprechend hast du die gewünschte Helligkeit.
z.B. wenn die LED für 2ms an ist und für 1ms aus, ist das heller, als wennn die LED für 0,5ms an und für 2,5ms aus ist.
Was das Hochfahren des PC's betrifft, das ganze lässt sich auch über DMX Pulte Steuern, damit würde der Bootvorgang entfallen
Und ob du das ganze nun über die Matrix oder über die Erweiterung mit den Latches schaltest ist im Prinzip egal, unterschied ist im wesentlichen, die anzahl der steuerbaren LED mit einem Modul und die Anzahl an Abstufungen beim dimmen.
Wobei ich kann dir sagen, dass du keine 255 Schritte zum dimmen brauchst, man merkt im obern Bereich eh kaum veränderungen, eine Auslösung von 120 "Schritten" sollte also auch reichen.
Fall's du dich für die Latches entscheiden solltest, anstatt für die Matrix, guck dir mal das Pinout des 74AC573 an, meiner Meinung nach ist das praktischer
Tjaja.... nur aus Fehlern lernt man ^^
Das bei PWM der Strom schnell ein- und aus- geschaltet wird war mir klar, nur dachte ich bei DMX entspäche "ein Kanal" einem Bit (also 1 oder 0). Das ist aber falsch, da 1 Kanal = 1 Byte = 8 Bit = 0-256.
Die 255 Dimmschritte "sieht" man zwar sicherlich nicht direkt, aber für ein leichtes flimmern ist es glaube cih besser ein paar Kanäle zuviel als zuwenig zu haben, wobei die Doppelte Anzahl an Kanälen gerade mal ca. 10€ mehr kostet. So viel Luxus darf sein
Das der 74AC 573 praktischer ist, stimmt allerdings. beim 373 sind die Pins so verworren.... ne, dass muss nicht sein (hatte nur bis eben noch nicht auf die Belegung geachtet. Wieder was gelernt).
Nur was ich jetzt immernoch suche sind die 3 Kondensatoren für den DMX-Demuxer. Kann sie bei Reichelt nicht finden (oder sie sind zu gut versteckt...). 27pF, 100nF und 100µF.
Für den ersten finde ich nur einen Trimmerkondensator von 3-30pF (den könnte man zwar auf 27pF Einstellen, das ist aber sicherlich nicht die Optimallösung) mit der Bestellnummer TRIMMER 11279.
Muss ich diese woanders bestellen?
Das bei PWM der Strom schnell ein- und aus- geschaltet wird war mir klar, nur dachte ich bei DMX entspäche "ein Kanal" einem Bit (also 1 oder 0). Das ist aber falsch, da 1 Kanal = 1 Byte = 8 Bit = 0-256.
Die 255 Dimmschritte "sieht" man zwar sicherlich nicht direkt, aber für ein leichtes flimmern ist es glaube cih besser ein paar Kanäle zuviel als zuwenig zu haben, wobei die Doppelte Anzahl an Kanälen gerade mal ca. 10€ mehr kostet. So viel Luxus darf sein
Das der 74AC 573 praktischer ist, stimmt allerdings. beim 373 sind die Pins so verworren.... ne, dass muss nicht sein (hatte nur bis eben noch nicht auf die Belegung geachtet. Wieder was gelernt).
Nur was ich jetzt immernoch suche sind die 3 Kondensatoren für den DMX-Demuxer. Kann sie bei Reichelt nicht finden (oder sie sind zu gut versteckt...). 27pF, 100nF und 100µF.
Für den ersten finde ich nur einen Trimmerkondensator von 3-30pF (den könnte man zwar auf 27pF Einstellen, das ist aber sicherlich nicht die Optimallösung) mit der Bestellnummer TRIMMER 11279.
Muss ich diese woanders bestellen?
Hier mal die Links zu deinen Kondensatoren:
27pF
100nF
100µF 16V Spannungsfestigkeit
100µF 25V Spannungsfestigkeit
100µF 35V Spannungsfestigkeit
Welche Spannungsfestigkeit du nimmst hängt hauptsächlich davon ab, wie groß deine Eingangsspannung ist, bzw. ob der Kondensator vor oder nach dem 7805 sitzt
Aber ich denke die 16V Version sollte langen
27pF
100nF
100µF 16V Spannungsfestigkeit
100µF 25V Spannungsfestigkeit
100µF 35V Spannungsfestigkeit
Welche Spannungsfestigkeit du nimmst hängt hauptsächlich davon ab, wie groß deine Eingangsspannung ist, bzw. ob der Kondensator vor oder nach dem 7805 sitzt
Aber ich denke die 16V Version sollte langen
So... habe ja lange nichts mehr von mir hören lassen.....
Das lag daran das das Zimmer ausgeräumt wurde, und dabei auch der PC an einen anderen Ort musste.
In den nächsten Tagen wird Tapeziert und nächste Woche wollte ich mit der Deckenbeleuchtung anfangen.
Als ich aber heute nochmal alles durgerechnet habe und die Bestellung aufgeben wollte ist mir aufgefallen, dass für mein Vorhaben die Schaltung über Latches gar nicht in Frage kommt, da ich die Sternbilder ja dann immer zusammen als ein Cluster anklemmen müsste, und wenn ich ein "zufälliges flackern" haben möchte, würden immer die ganzen Sternbilder (bzw. halbe) flackern und das wirkt glaube ich nicht so gut wie immer nur 1-2 LEDs einzeln gesteuert.
Also wieder ab auf die Seite von Hendrik Hölscher und weitergesucht.
Dabei auf die 64er Matrix gestoßen und überlegt, warum ich nicht gleich diese verwenden wollte.
Vielleicht weil mir das Funktionsprinzip noch nicht ganz klar war/ist:
Wird bei der Schaltung von "oben nach unten" jeweils für jeden der 8 Ausgänge einmal der Grnd geschaltet und dazu dann jeweils passen von "links nach rechts" (vom output aus) die passenden Ströme für die einzelnen LEDs?
Oder liege ich komplett falsch?
Also auf die Einkaufliste bei Reichelt noch 3 ULN2803A und 3 74HC4543 gesetzt (Hoffe der ist schnell genug).
Die Rechnung zeigt mittlerweile ca. 100€.
Wenn keiner sagt "STOP! FEHLER!" dann werde ich wohl Ende dieser Woche bestellen
Die LEDs nehme ich (natürlich) von LEds.de, ich habe mich für 5mm LEDs als "große sterne" entschieden (da diese hinter etwas Heißkleber sind, welcher angeleuchtet wird und das Licht streut, ist der Abstrahlwinkel wohl eher vernachlässigbar).
Aus 3mm LEDs sollen noch einige kleinere Sterne eingebaut werden.
Für den Polarstern (Welcher ziehmlich genau in der Mitte des Zimmers sitzen wird) habe ich eine blaue SuperFlux ausgewählt. Ich denke das wird wohl klar erkennbar sein *gg*
Ich hoffe auf soweit keine Fehler und danke euch jetzt schonmal für die große Unterstützung bei der Verwirklichung dieses Projekts!
Das lag daran das das Zimmer ausgeräumt wurde, und dabei auch der PC an einen anderen Ort musste.
In den nächsten Tagen wird Tapeziert und nächste Woche wollte ich mit der Deckenbeleuchtung anfangen.
Als ich aber heute nochmal alles durgerechnet habe und die Bestellung aufgeben wollte ist mir aufgefallen, dass für mein Vorhaben die Schaltung über Latches gar nicht in Frage kommt, da ich die Sternbilder ja dann immer zusammen als ein Cluster anklemmen müsste, und wenn ich ein "zufälliges flackern" haben möchte, würden immer die ganzen Sternbilder (bzw. halbe) flackern und das wirkt glaube ich nicht so gut wie immer nur 1-2 LEDs einzeln gesteuert.
Also wieder ab auf die Seite von Hendrik Hölscher und weitergesucht.
Dabei auf die 64er Matrix gestoßen und überlegt, warum ich nicht gleich diese verwenden wollte.
Vielleicht weil mir das Funktionsprinzip noch nicht ganz klar war/ist:
Wird bei der Schaltung von "oben nach unten" jeweils für jeden der 8 Ausgänge einmal der Grnd geschaltet und dazu dann jeweils passen von "links nach rechts" (vom output aus) die passenden Ströme für die einzelnen LEDs?
Oder liege ich komplett falsch?
Also auf die Einkaufliste bei Reichelt noch 3 ULN2803A und 3 74HC4543 gesetzt (Hoffe der ist schnell genug).
Die Rechnung zeigt mittlerweile ca. 100€.
Wenn keiner sagt "STOP! FEHLER!" dann werde ich wohl Ende dieser Woche bestellen
Die LEDs nehme ich (natürlich) von LEds.de, ich habe mich für 5mm LEDs als "große sterne" entschieden (da diese hinter etwas Heißkleber sind, welcher angeleuchtet wird und das Licht streut, ist der Abstrahlwinkel wohl eher vernachlässigbar).
Aus 3mm LEDs sollen noch einige kleinere Sterne eingebaut werden.
Für den Polarstern (Welcher ziehmlich genau in der Mitte des Zimmers sitzen wird) habe ich eine blaue SuperFlux ausgewählt. Ich denke das wird wohl klar erkennbar sein *gg*
Ich hoffe auf soweit keine Fehler und danke euch jetzt schonmal für die große Unterstützung bei der Verwirklichung dieses Projekts!
So, ich habe ja nun lange nichts mehr von mir höhren lassen...
Die Renovierung ist soweit abgeschlossen (bis eben auf die Decke).
Bevor ich anfange zu basteln habe ich mir über google die Bilder einiger Sternbilder zusammengesucht und verscuht diese zu platzieren. Dabei kam folgendes raus:
Dann noch schnell ein Delphi-Programm geschrieben, welches die ganzen "Punkte" in einzelne Pixel umwandelt und die Position relativ zu den einzelnen Deckenpanelen ausgibt (Dafür habe ich die komplette Decke gemessen, dann noch die Breite eine Panele und dann über die Pixel eine Position angegeben).
Über die genaue Verkabelung mache ich mir bis zum Wochenende noch ein paar Gedanken und dann geht das große Bohren, Kleben und Löten los - 300 LEDs wollen ihren Platz am "Himmel" finden.
Die Renovierung ist soweit abgeschlossen (bis eben auf die Decke).
Bevor ich anfange zu basteln habe ich mir über google die Bilder einiger Sternbilder zusammengesucht und verscuht diese zu platzieren. Dabei kam folgendes raus:
Dann noch schnell ein Delphi-Programm geschrieben, welches die ganzen "Punkte" in einzelne Pixel umwandelt und die Position relativ zu den einzelnen Deckenpanelen ausgibt (Dafür habe ich die komplette Decke gemessen, dann noch die Breite eine Panele und dann über die Pixel eine Position angegeben).
Über die genaue Verkabelung mache ich mir bis zum Wochenende noch ein paar Gedanken und dann geht das große Bohren, Kleben und Löten los - 300 LEDs wollen ihren Platz am "Himmel" finden.
Nach einigen Monaten ist das Ergebnis (leider) immernoch recht ernüchternd.
Bisher sind von den 27 Panelenreihen die mal ihren Weg an die Decke finden sollen ganze 3 Montiert.
Die Steuerung ist auhc ncoh im "Anfangsstadium", da die Belichtundsmaschine zum Platinenbelichten vorher noch fertig gestellt werden muss....
Eine Ecke mit ein paar "Sternen" habe ich mal bei voller Leuchtkraft abfotografiert: Hoffentlich wird das ganze ncoh was bis Weihnachten.... 2009
Bisher sind von den 27 Panelenreihen die mal ihren Weg an die Decke finden sollen ganze 3 Montiert.
Die Steuerung ist auhc ncoh im "Anfangsstadium", da die Belichtundsmaschine zum Platinenbelichten vorher noch fertig gestellt werden muss....
Eine Ecke mit ein paar "Sternen" habe ich mal bei voller Leuchtkraft abfotografiert: Hoffentlich wird das ganze ncoh was bis Weihnachten.... 2009
naja des wird schon noch
soll lieber länger dauern als das es pfusch wird
und am ende schauts bestimmt genial aus
mfg ilker
soll lieber länger dauern als das es pfusch wird
und am ende schauts bestimmt genial aus
mfg ilker
Habe so etwas ähnliches realisiert!
Anstelle einzelnen LED's habe ich einen LED-Projektor mit 4 LED's genommen.
An jeder LED hing ein Glasfaserstrang von ca. 40 Glasfasern die ca 2 m lang waren.
Installiert hab ich das ganze auf einer dünnen Holzplatte von 1,5 m Durchmesser die ich kreisrund geschnitten habe.
Vorher habe ich von einer Bekannten schon einen Sternenhimmel mit Acrylfarben auf die Holzplatte malen lassen.
Ich habe rund 100 Löcher in die Holzplatte gebohrt, wobei ich in 2/3 der Löcher nur eine Glasfaser gesteckt habe, während ich in jeweils 1/3 mal 2 Glasfasern und jeweils 3 Glasfasern gesteckt habe.
Diese mußten natürlich größer gebohrt werden.
An dem LED-Projektor ist noch ein Schalter, mit dem ich 8 verschiedene Programme ablaufen lassen kann.
Habe 4 Haken in die Decke gebohrt, und 4 Haken an der Holzplatte befestigt. Die Holzplatte habe ich dann zwischen den Haken mit 4 Ketten befestigt, die so lang sind, daß ich die Holzplatte stück für Stück bis auf ca. 1m über den Boden (für Wartungsarbeiten), ablassen kann (Stromkabel ist auch so lang).
Den Strom habe ich von der ehemaligen Deckenlampe abgegriffen, und habe zwei Steckdosen angebracht. An jede dieser Steckdosen einen Funkempfänger. An die eine Steckdose den LED-Projektor angeschlossen, und an die andere Steckdose eine LED-Lichterkette mit blauen LED's.
Die Lichterkette mit den blauen LED's habe ich nur so lose im kreis auf die Holzplatte gelegt.
Nun kann ich über die Funk-Fernbedienung den LED-Projektor und die blaue Lichterkette an- und wieder ausschalten.
Zum schalten der einzelnen Programme muß ich allerdings mich auf das Bett stellen, um den Schalter am LED-Projektor zu drücken.
Wenn man pro Sternenbild einen LED-Projektor nehmen würde, dann könnte man auch so etwas realisieren, und könnte jedes einzelne Sternenbild ein- und wieder ausschalten.
Mit meinem verwendeten Funksender kann man vier unterschiedliche Stromquellen ein- und wieder ausschalten.
Man kann aber auch mit einem Sender mehrere unterschiedliche Verbraucher schalten, weil Sender und Empfänger kodierbar sind.
So schalte ich mein ganzes Licht im Schlafzimmer, Wohnzimmer und Kinderzimmer mit diesen Schaltern.
Zusätzlich werfe ich noch rote sich bewegende Punkte von einem Laserpod an die Holzscheibe.
Der Laserpod wirft sein Licht von 3 farbigen LED's und 3 Rotlichtlasern auf eine rodierende in facetten geschliffene Glaskugel, wodurch das Licht gebrochen wird.
Gruß Frank
Anstelle einzelnen LED's habe ich einen LED-Projektor mit 4 LED's genommen.
An jeder LED hing ein Glasfaserstrang von ca. 40 Glasfasern die ca 2 m lang waren.
Installiert hab ich das ganze auf einer dünnen Holzplatte von 1,5 m Durchmesser die ich kreisrund geschnitten habe.
Vorher habe ich von einer Bekannten schon einen Sternenhimmel mit Acrylfarben auf die Holzplatte malen lassen.
Ich habe rund 100 Löcher in die Holzplatte gebohrt, wobei ich in 2/3 der Löcher nur eine Glasfaser gesteckt habe, während ich in jeweils 1/3 mal 2 Glasfasern und jeweils 3 Glasfasern gesteckt habe.
Diese mußten natürlich größer gebohrt werden.
An dem LED-Projektor ist noch ein Schalter, mit dem ich 8 verschiedene Programme ablaufen lassen kann.
Habe 4 Haken in die Decke gebohrt, und 4 Haken an der Holzplatte befestigt. Die Holzplatte habe ich dann zwischen den Haken mit 4 Ketten befestigt, die so lang sind, daß ich die Holzplatte stück für Stück bis auf ca. 1m über den Boden (für Wartungsarbeiten), ablassen kann (Stromkabel ist auch so lang).
Den Strom habe ich von der ehemaligen Deckenlampe abgegriffen, und habe zwei Steckdosen angebracht. An jede dieser Steckdosen einen Funkempfänger. An die eine Steckdose den LED-Projektor angeschlossen, und an die andere Steckdose eine LED-Lichterkette mit blauen LED's.
Die Lichterkette mit den blauen LED's habe ich nur so lose im kreis auf die Holzplatte gelegt.
Nun kann ich über die Funk-Fernbedienung den LED-Projektor und die blaue Lichterkette an- und wieder ausschalten.
Zum schalten der einzelnen Programme muß ich allerdings mich auf das Bett stellen, um den Schalter am LED-Projektor zu drücken.
Wenn man pro Sternenbild einen LED-Projektor nehmen würde, dann könnte man auch so etwas realisieren, und könnte jedes einzelne Sternenbild ein- und wieder ausschalten.
Mit meinem verwendeten Funksender kann man vier unterschiedliche Stromquellen ein- und wieder ausschalten.
Man kann aber auch mit einem Sender mehrere unterschiedliche Verbraucher schalten, weil Sender und Empfänger kodierbar sind.
So schalte ich mein ganzes Licht im Schlafzimmer, Wohnzimmer und Kinderzimmer mit diesen Schaltern.
Zusätzlich werfe ich noch rote sich bewegende Punkte von einem Laserpod an die Holzscheibe.
Der Laserpod wirft sein Licht von 3 farbigen LED's und 3 Rotlichtlasern auf eine rodierende in facetten geschliffene Glaskugel, wodurch das Licht gebrochen wird.
Gruß Frank
Na, das klingt ja auch schon mal nicht schlecht!
Zumindest weiß ich damit dass cih nciht der einzige Verückte mit Sternenhimmel bin
Hast du vllt mal Bilder von dem ganzen in Betrieb?
Zumindest weiß ich damit dass cih nciht der einzige Verückte mit Sternenhimmel bin
Hast du vllt mal Bilder von dem ganzen in Betrieb?
klingt doch alles vielversprechend aus!!
bin schon gespannt auf das endergebniss!!
Mfg helmi
bin schon gespannt auf das endergebniss!!
Mfg helmi
Ich kenn das zu gut von meinen Projekten, insofern es nicht eilt, schiebt sich das ganze bei mir auch immer so vor sich hin.
Aber finde es trotzdem gut, dass du uns hier auf dem laufenden hält.
Aber ist auch schon einiges an arbeit was du dir da vorgenommen hast, also lass dir auch Zeit damit, es soll ja schließlich ordentlich werden.
Nicht vergessen, alles gut (Foto)dokumentieren
Aber finde es trotzdem gut, dass du uns hier auf dem laufenden hält.
Aber ist auch schon einiges an arbeit was du dir da vorgenommen hast, also lass dir auch Zeit damit, es soll ja schließlich ordentlich werden.
Nicht vergessen, alles gut (Foto)dokumentieren
Das ist ja echt heftig geil, deine Idee und bis jetzt Halbumsetzung!!
Kannst du dann eigentlich alle LEDs einzeln ansteuern und beliebige Sternenbilder zaubern oder nur vorgegebene indem du die einzelnen Sternbilder in einen Stromkreis schaltest??
Aber echt der Hammer!!--Respekt-- vor deiner geduld!
Wo ist denn der Nordstern?
Gibts bei dir blinkende fahrende Sterne auch??
Und Sternschnuppen??
MfG Mario
Kannst du dann eigentlich alle LEDs einzeln ansteuern und beliebige Sternenbilder zaubern oder nur vorgegebene indem du die einzelnen Sternbilder in einen Stromkreis schaltest??
Aber echt der Hammer!!--Respekt-- vor deiner geduld!
Wo ist denn der Nordstern?
Gibts bei dir blinkende fahrende Sterne auch??
Und Sternschnuppen??
MfG Mario
Lies den Rest des Threads dann weitßt du's 
Aber hier nochmal die Zusammenfassung:
Das ganze ist via DMX ansteuerbar - dabei verwende ich den Demuxer von "Henne's Site" im 64-Kanal Betrieb (insgesammt 3 davon - d.h. 192 Kanäle).
Somit kann ich 110*2 LEDs ansteuern und 80 einzel-LEDs und das in jeweils 128 Helligkeitsstufen.
Der "Nordstern" wird genau in der Mitte des Zimmers sein - wollte zuerst eine 10mm LED verwenden, das erschien mir aber dann doch zu groß und so ist es ne 5mm LED geworden.
Was genau du mit "blinkede fahrende Sterne" meinst weiß ich leider nicht, aber Sternschnuppen könnte man quasi nachstellen in dem man nah beieinander sitzende LEDs nacheinander aufblinken lässt.
Mfg
JayBee
Aber hier nochmal die Zusammenfassung:
Das ganze ist via DMX ansteuerbar - dabei verwende ich den Demuxer von "Henne's Site" im 64-Kanal Betrieb (insgesammt 3 davon - d.h. 192 Kanäle).
Somit kann ich 110*2 LEDs ansteuern und 80 einzel-LEDs und das in jeweils 128 Helligkeitsstufen.
Der "Nordstern" wird genau in der Mitte des Zimmers sein - wollte zuerst eine 10mm LED verwenden, das erschien mir aber dann doch zu groß und so ist es ne 5mm LED geworden.
Was genau du mit "blinkede fahrende Sterne" meinst weiß ich leider nicht, aber Sternschnuppen könnte man quasi nachstellen in dem man nah beieinander sitzende LEDs nacheinander aufblinken lässt.
Mfg
JayBee
Hallo...
Nun will ich euch mit ein paar Bildern beglücken...
Beachtet aber folgendes...
Die Bilder geben nicht annähernd die Realität wieder.
Ich habe die Lichtpunkte möglichst gleichmäßig über die 1,5 m Durchmessende Holzscheibe verteilt.
Also keine Sternenbilder. Die Lichtquelle besteht aus einem LED-Projektor mit 4 LED's, an jeder LED befinden sich ca. 40 Glasfasern, die ich durch gebohrte Löcher durch die Rückwand der Holzplatte gesteckt habe.
Die Glasfasern habe ich ein bischen mit Tape-Band fixiert.
Die Holzplatte hängt an 4 Ketten im Abstand von 20 cm zur Decke, was dem Ganzen noch ein bischen mehr Tiefe verleiht, und genug Platz für die ganze Installation läßt.
Weiterhin habe ich auf der Holzplatte eine blaue LED-Lichterkette lose verlegt.
Bildbeschreibungen:
[img]images/userupload/578_PICT1373_1.jpg[/img]
Mit 4 solcher Haken habe ich die Holzplatte an der Decke befestigt
[img]images/userupload/578_PICT1374_1.jpg[/img]
Genauso habe ich 4 Löcher für Haken in die Holzscheibe gebohrt.
Auf der zur Decke gewandten Seite ist der Haken fixiert mit einer Mutter und Unterlegscheibe.
[img]images/userupload/578_PICT1379_1.jpg[/img]
Auf der anderen Seite habe ich solche Schlagschrauben mit Innengewinde genommen.
-Auch, weil diese Schrauben wie Sterne aussehen, und das Bild nicht beeinträchtigen.
[img]images/userupload/578_PICT1380_1.jpg[/img]
Hier nochmal die Schlagschrauben.
[img]images/userupload/578_PICT3508_1.jpg[/img]
Hier nun der Sternenhimmel, wenn nur der LED-Projektor an ist, bei völliger Dunkelheit.
[img]images/userupload/578_PICT3509_1.jpg[/img]
Hier nun die Holzscheibe unbeleuchtet, mit dem bemalten Sternenhimmel.
[img]images/userupload/578_PICT3510_1.jpg[/img]
Nun die Holzscheibe mit den Glasfaserpunkten aus dem LED-Projektor
[img]images/userupload/578_PICT3511_1.jpg[/img]
Hier die Holzscheibe mit den weißen LED-Punkten und der blauen LED-Kette.
Wenn einzelne Glasfaser-LED gerade nicht leuchten, dann scheint das blaue Licht der blauen LED-Kette durch.
[img]images/userupload/578_PICT3512_1.jpg[/img]
Es ist ziemlich schwer das Licht der blauen LED richtig festzuhalten.
Die Bilder kommen an das Original bei weitem nicht heran.
[img]images/userupload/578_PICT3513_1.jpg[/img]
Nun noch die roten Lichter des Laserpods dazu, die über die Scheibe wandern.
[img]images/userupload/578_PICT3514_1.jpg[/img]
Zur Konzentration der Laser-Punkte habe ich auf den Laserpod noch eine in vielen Facetten geschliffene Glaskugel gelegt. -Je kleiner die geschliffenen Facetten desto mehr Lichtpunkte.
-Außerdem wurden so die meisten Lichtpunkte auf den Bereich der Holzscheibe gebündelt.
[img]images/userupload/578_PICT3515_1.jpg[/img]
Das schwierigste an der ganzen Sache war, die 100 Löcher in 3 verschiedenen Stärken zu bohren und anschließend wiederzufinden. Ich hatte mir dann so geholfen, daß ich um jedes Loch an der Rückseite einen Kreis mit Kuli zur Markierung gemacht hatte.
Gruß Frank
Nun will ich euch mit ein paar Bildern beglücken...
Beachtet aber folgendes...
Die Bilder geben nicht annähernd die Realität wieder.
Ich habe die Lichtpunkte möglichst gleichmäßig über die 1,5 m Durchmessende Holzscheibe verteilt.
Also keine Sternenbilder. Die Lichtquelle besteht aus einem LED-Projektor mit 4 LED's, an jeder LED befinden sich ca. 40 Glasfasern, die ich durch gebohrte Löcher durch die Rückwand der Holzplatte gesteckt habe.
Die Glasfasern habe ich ein bischen mit Tape-Band fixiert.
Die Holzplatte hängt an 4 Ketten im Abstand von 20 cm zur Decke, was dem Ganzen noch ein bischen mehr Tiefe verleiht, und genug Platz für die ganze Installation läßt.
Weiterhin habe ich auf der Holzplatte eine blaue LED-Lichterkette lose verlegt.
Bildbeschreibungen:
[img]images/userupload/578_PICT1373_1.jpg[/img]
Mit 4 solcher Haken habe ich die Holzplatte an der Decke befestigt
[img]images/userupload/578_PICT1374_1.jpg[/img]
Genauso habe ich 4 Löcher für Haken in die Holzscheibe gebohrt.
Auf der zur Decke gewandten Seite ist der Haken fixiert mit einer Mutter und Unterlegscheibe.
[img]images/userupload/578_PICT1379_1.jpg[/img]
Auf der anderen Seite habe ich solche Schlagschrauben mit Innengewinde genommen.
-Auch, weil diese Schrauben wie Sterne aussehen, und das Bild nicht beeinträchtigen.
[img]images/userupload/578_PICT1380_1.jpg[/img]
Hier nochmal die Schlagschrauben.
[img]images/userupload/578_PICT3508_1.jpg[/img]
Hier nun der Sternenhimmel, wenn nur der LED-Projektor an ist, bei völliger Dunkelheit.
[img]images/userupload/578_PICT3509_1.jpg[/img]
Hier nun die Holzscheibe unbeleuchtet, mit dem bemalten Sternenhimmel.
[img]images/userupload/578_PICT3510_1.jpg[/img]
Nun die Holzscheibe mit den Glasfaserpunkten aus dem LED-Projektor
[img]images/userupload/578_PICT3511_1.jpg[/img]
Hier die Holzscheibe mit den weißen LED-Punkten und der blauen LED-Kette.
Wenn einzelne Glasfaser-LED gerade nicht leuchten, dann scheint das blaue Licht der blauen LED-Kette durch.
[img]images/userupload/578_PICT3512_1.jpg[/img]
Es ist ziemlich schwer das Licht der blauen LED richtig festzuhalten.
Die Bilder kommen an das Original bei weitem nicht heran.
[img]images/userupload/578_PICT3513_1.jpg[/img]
Nun noch die roten Lichter des Laserpods dazu, die über die Scheibe wandern.
[img]images/userupload/578_PICT3514_1.jpg[/img]
Zur Konzentration der Laser-Punkte habe ich auf den Laserpod noch eine in vielen Facetten geschliffene Glaskugel gelegt. -Je kleiner die geschliffenen Facetten desto mehr Lichtpunkte.
-Außerdem wurden so die meisten Lichtpunkte auf den Bereich der Holzscheibe gebündelt.
[img]images/userupload/578_PICT3515_1.jpg[/img]
Das schwierigste an der ganzen Sache war, die 100 Löcher in 3 verschiedenen Stärken zu bohren und anschließend wiederzufinden. Ich hatte mir dann so geholfen, daß ich um jedes Loch an der Rückseite einen Kreis mit Kuli zur Markierung gemacht hatte.
Gruß Frank



